Le coin inférieur droit de la peau de circonférence du dos
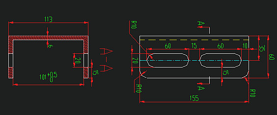
Code des accessoires: 563L2-00516-DY1
Modèles: Haige
Unité: Pièces
Spécifications:
Vues:
4
Code des accessoires: 563L2-00516-DY1